Suburban Inversion
(1)

(2)
Content 1
(3)
(4)
(5)
» Location
Merced, California
» Data

 

Project: Suburban Gentrification

Critic: Jonathan Levi

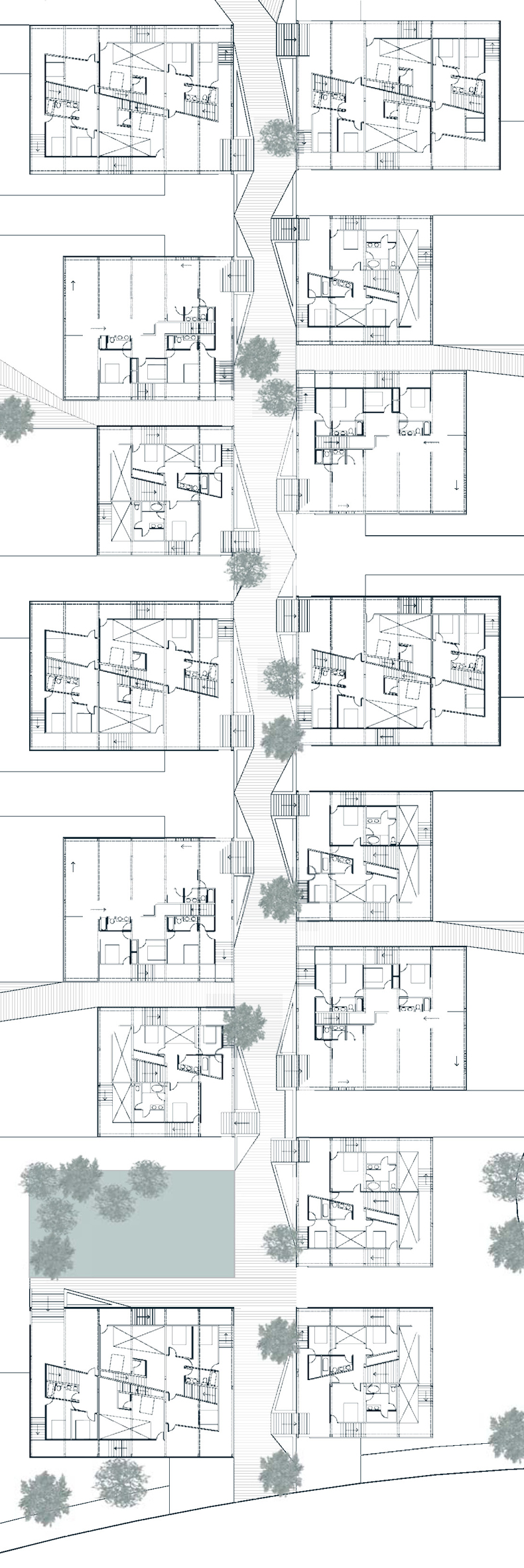
Program: 50 unit suburban housing gentrification

Status: GSD Studio Project

 

» Text

In Progress